案例搜索 設計師搜索案例搜索新聞搜索
24小時裝修咨詢
13907625970
案例風格
簡歐
案例戶型
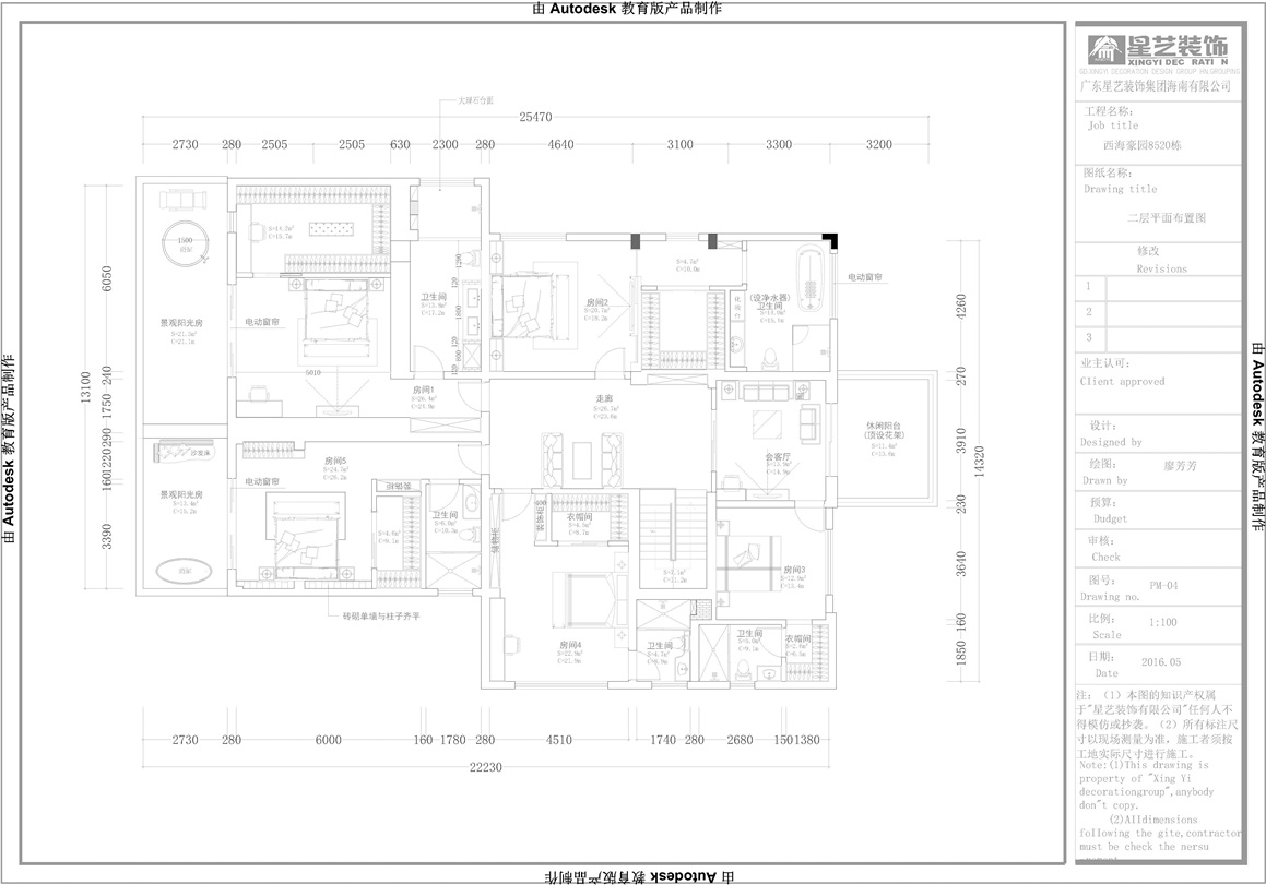
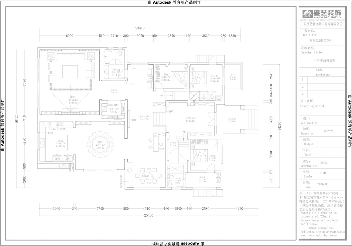
別墅
案例面積
680㎡
樓盤名稱
西海豪園
設計師
張俊帥
案例造價
204萬
主要用材
大花白大理石、爵士白大理石、實木烤漆護墻板、液體墻紙、地毯、布藝硬包
本案例設計師簡介
設計總監
全部案例找他設計
預約設計,免費預算
一室 二室 三室 四室 五室 別墅 復式 五室以上
裝修流程